Niché au sein d’un site riche en biodiversité, le projet de réhabilitation et d’extension de l’EHPAD de Steenwerck cherche à se définir autour de quatre objectifs principaux :
- Offrir des unités de vie à la fois fonctionnelles, confortables et sécurisantes, où l’architecture favorisera, par la qualité et l’ergonomie des espaces, la sérénité des résidents tout en étant propice à la rencontre et aux échanges.
- Créer un projet éco-responsable en y intégrant des notions de simplicité et de bon sens environnemental, de manière à créer un bâtiment durable, facile à gérer et au coût d’entretien réduit.
- Inscrire l’opération dans une démarche paysagère générale et d’ouverture sur la ville, qui puisse renforcer le bien-être physique et moral que procure le contact avec la nature.
- Ouvrir la résidence sur la ville afin de maintenant la sensation d’appartenance à la communauté. Ce point sera renforcé par les liaisons privilégiées avec la micro-crèche, le bistrot de l’EHPAD et le village des aînés sur le site. Le village des ainés sera traité dans un second temps et ne fait pas parti de l’enveloppe budgétaire allotie.
Spécificité :
Travaux en site occupé Extension structure bois isolation caisson paille Ventilation double flux sur toute l’opération Mission BIM

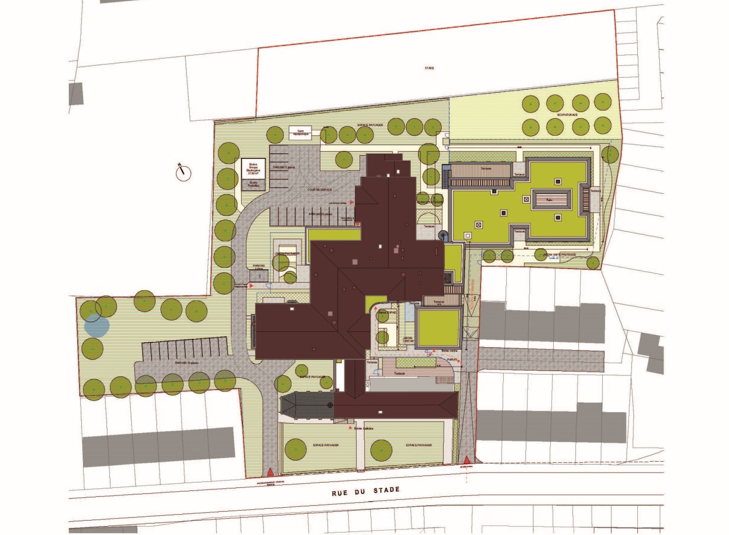
Résidence l’Abbé Le François

Nature du Projet :
Réhabilitation et extension de l'EHPAD "la Résidence de l’Abbé Le François", intégration d'une unité de vie Alzheimer, d'une micro-crèche, d'un tiers-lieu et la restructuration extension du village des aînés
Lieu :
Steenwerck (59)
MOA :
Résidence de l’Abbé Le François
Équipe :
Polynôme Architectes, Hexa Ingénierie, ELAN, Canopée, BimBox, Venathec
Surfaces :
SDO : 5 860m², SU : 1 107m², SDP : 1 381m²
Coût total des travaux (HT) :
Estimation globale 10 419153 € HT
Caractériques Énergétiques :
RT existante – 40% pour la réhabilitation et RE2020 pour le neuf
Statut :
En cours
Auteur des images :
Polynôme architectes